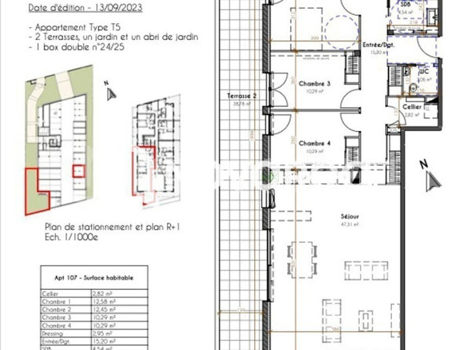
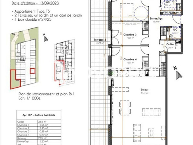
Caractéristiques du bien
- Construit en 2025
- Biens soumis à la copropriété : 107 lots
- Surface : 125,46m²
- Séjour de 47,28m²
- Au premier étage
- 4 étages
- 5 pièces
- 4 chambres
- 1 salle de bain
- 1 salle d'eau
- 1 wc
- 2 garages
- 2 parkings
- Chauffage : mixte
- Cuisine : séparée
